Wolnostojący, nowy dom - Papowo Toruńskie

toruński, Łysomice, Papowo Toruńskie

800 000 PLN

Numer oferty1308
Typ transakcjiSprzedaż
Cena800 000 PLN
Powierzchnia185 m2
Cena za m24 324,32 PLN / m2
Liczba pokoi5
Powierzchnia działki m21 500
Rok budowy2024
Stan domudo wykończenia
Rynekwtórny
Typ zabudowywolnostojący
Typ drogiszutrowa
Typ ogrodzeniabrak
Powierzchnia użytkowa150
Forma własnościwłasność
Liczba łazienek2
Liczba sypialni4
Kuchniawidna
OknaPCV
Podłogagres
Ścianygładź gipsowa
Liczba miejsc parkingowych2
Garażinny
Wodamiejska
Kanalizacjamiejska
Typ Ogrodzeniabrak
Typ Drogiszutrowa
Ogrzewanieelektryczne
Wolnostojący, nowy dom - Papowo Toruńskie (toruński, Łysomice, Papowo Toruńskie)


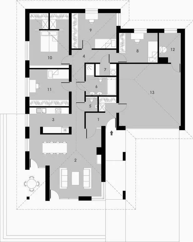
Prezentuję Państwu funkcjonalny, elegancki i klasyczny dom - tak w skrócie można opisać ten projekt. Jest to propozycja godna polecenia osobom szukającym domu parterowego z dużym garażem. Całą bryłę przykrywa wielospadowy dach pokryty dachówką. Do głównej części mieszkalnej dołączono po prawej stronie garaż dwustanowiskowy z szeroką bramą wjazdową. Duże przeszklenia doskonale doświetlają pokoje dzienne, sprawiając, że stają się one jasne i przestronne.

Oprócz pięknego wyglądu dom ten cechuje się dobrze pomyślanym układem wnętrza. W projekcie wszystkie pokoje umieszczono na jednym poziomie. Udało się jednak odseparować strefę dzienną i nocną, przez co mieszkańcy mogą zachować prywatność. Do domu wchodzi się przez przedsionek, z którego można przejść bezpośrednio do garażu z kotłownią lub do części dziennej domu.

Reprezentacyjna strefa dzienna składa się z otwartej części wypoczynkowej połączonej z jadalnią i kuchnią. Idąc dalej korytarzem, można wejść do toalety, łazienki, pralni oraz do sypialni. Dalej znajdują się cztery sypialnie, które można dowolnie urządzić.

Właściciel wniósł trochę zmian do oryginalnego projektu, z czego najważniejszą jest zrobienie użytkowego poddasza oraz antresoli nad częścią dzienną. Dzięki temu uzyskany został bardzo ciekawy efekt wysokiego sufitu nad salonem, ale także zyskano bardzo dużo dodatkowej przestrzeni użytkowej.

Nieruchomość położona jest w odległości 6 km od toruńskiego osiedla "Jar". Dojazd możliwy jest zadbaną i równą drogą. Cechą charakterystyczna tego miejsca jest fakt, że dojazd do Torunia może być realizowany na wiele sposobów.

Ważne informacje: Dom wymaga przeprowadzenia dodatkowych prac związanych z dokończeniem budowy.


Treść niniejszego ogłoszenia nie stanowi oferty handlowej w rozumieniu Kodeksu Cywilnego.
Oferta wysłana z programu IMO dla pośredników.
Informacje
Drzwi/okna antywłamaniowe Rolety antywłamaniowe
toruński, Łysomice, Papowo Toruńskie

Kontakt